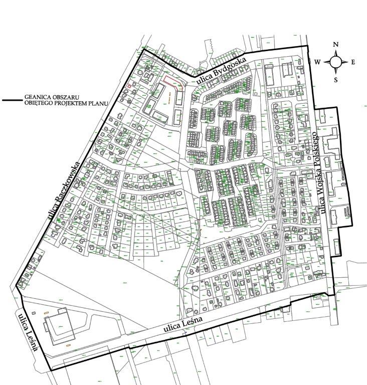
AGP-RU Ogłoszenie o przystąieniu do sporządzenia mpzp osiedla Hańcza w części ograniczonej ulicami: Leśną, Raczkowską, Bydgoską, Wojska Polskiego oraz terenem wojskowym zamkniętym w Suwałkach
Suwałki, dnia 16 sierpnia 2022 r.
AGP-RU.6721.117.02.2022
OGŁOSZENIE
o przystąpieniu do sporządzenia miejscowego planu zagospodarowania przestrzennego osiedla Hańcza w części ograniczonej ulicami: Leśną, Raczkowską, Bydgoską, Wojska Polskiego oraz terenem wojskowym zamkniętym w Suwałkach
Na podstawie art. 17 pkt. 1 ustawy z dnia 27 marca 2003 r. o planowaniu i zagospodarowaniu przestrzennym (Dz. U. z 2022 r. poz. 503), zawiadamiam o podjęciu przez Radę Miejską w Suwałkach uchwały Nr XLVIII/614/2022 z dnia 27 lipca 2022 r. o przystąpieniu do sporządzenia miejscowego planu zagospodarowania przestrzennego osiedla Hańcza w części ograniczonej ulicami: Leśną, Raczkowską, Bydgoską, Wojska Polskiego oraz terenem wojskowym zamkniętym w Suwałkach.
Zainteresowani mogą składać wnioski do wyżej wymienionego miejscowego planu.
Wnioski należy składać na piśmie w Kancelarii Ogólnej – pokój nr 5 lub w punkcie przyjęć korespondencji UM, ul. Mickiewicza 1, 16-400 Suwałki w terminie do dnia 30 września 2022 r.
Wniosek powinien zawierać nazwisko, imię, nazwę i adres wnioskodawcy, przedmiot wniosku oraz oznaczenie nieruchomości, której dotyczy.*
Prezydent Miasta Suwałk
Czesław Renkiewicz
*W związku z obowiązkiem określonym w art. 13 Rozporządzenia Parlamentu Europejskiego i Rady (UE) 2016/679 z dnia 27 kwietnia 2016 r. w sprawie ochrony osób fizycznych w związku z przetwarzaniem danych osobowych i w sprawie swobodnego przepływu takich danych oraz uchylenia dyrektywy 95/46/WE (ogólne rozporządzenie o ochronie danych) (Dz. Urz. UE L 119 z 04 maja 2016 r., str. 1, późniejszymi zmianami), zwanego dalej „RODO” informuję, iż:
- Administratorem Pani/Pan danych osobowych, podanych we wniosku/uwadze jest Urząd Miejski w Suwałkach reprezentowany przez Prezydenta Miasta Suwałk z siedzibą ul. A. Mickiewicza 1, 16-400 Suwałki tel. 87 562-80-00, adres e-mail: org@um.suwalki.pl , adres elektronicznej skrzynki podawczej (ESP) na ePUAP: /UMSuwalki/esp.
- Podane dane osobowe będą przetwarzane w związku z prowadzeniem procedur dotyczących sporządzania miejscowego planu zagospodarowania przestrzennego na podstawie art. 17 ustawy z dnia 27 marca 2003 r. o planowaniu
i zagospodarowaniu przestrzennym (Dz. U. z 2020 r. poz. 293 z późniejszymi zmianami) w celu realizacji przez Miasto jego zadań, a podstawą prawną ich przetwarzania jest art. 6 ust.1 pkt. c) RODO, co oznacza, że przetwarzanie Pani/Pana danych jest niezbędne do wypełnienia obowiązku prawnego ciążącego na Administratorze danych w stosunku do danych do których żądania na podstawie prawa uprawniony jest Administrator danych w procesie właściwej realizacji złożonego podania lub postępowania administracyjnego. - We wszystkich sprawach związanych z przetwarzaniem danych osobowych oraz realizacją przysługujących Pani/Panu w tym zakresie praw, można skontaktować się z Inspektorem Ochrony Danych pod adresem e-mail: iod@um.suwalki.pl. tel. 87 562-82-08
- Posiada Pani/Pan prawo dostępu do treści swoich danych, prawo ich sprostowania, prawo ograniczenia przetwarzania, prawo sprzeciwu wobec przetwarzanych. Prawo do usunięcia, swoich danych przysługuje Pani/Panu w sytuacji, gdy wcześniej wyrażona zgoda na przetwarzanie danych zostanie przez Państwa cofnięta, a przepisy ustawy szczególnej zezwalają na ich trwałe usunięcie.
- Pełen zakres informacji dotyczących przetwarzania danych osobowych znajduje się na stronie internetowej urzędu w BIP w zakładce „zagospodarowanie przestrzenne” pod adresem: http://bip.um.suwalki.pl/Menu_tematyczne/Zagospodarowanie_przestrzenne/informacja-dotyczaca-przetwarzania-danych-osobowych.html oraz w siedzibie Administratora - Wydział Architektury i Gospodarki Przestrzennej pok. 139.
