Uchwała Rady Nr XXXVIII/427/5 z dnia 2005-08-25
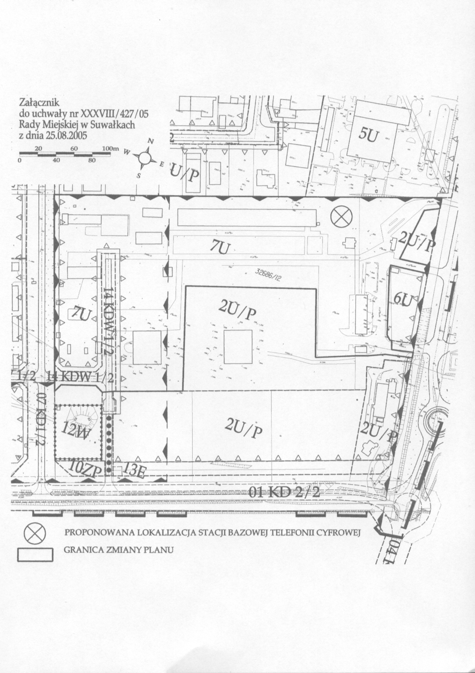
| Dotyczy | w sprawie przystąpienia do sporządzenia zmiany miejscowego planu zagospodarowania przestrzennego terenów produkcyjno-usługowych położonych przy ul. Leśnej w Suwałkach. |
|---|---|
| Data wydania | 2005-08-25 |
| Numer | XXXVIII/427/5 |
