Plan nr 112 - mpzp rejonu Rodzinnych Ogrodów Działkowych "MALWA" w Suwałkach
-
Dane przestrzenne o których mowa w art. 67a ust. 3 i 5 ustawy z dnia 27 marca 2003 r. o planowaniu i zagospodarowaniu przestrzennym (Dz. U. z 2022 r. poz. 503)
(
8.26 KB )
Dane przestrzenne do uchwały Nr XLVIII/615/2022 Rady Miejskiej w Suwałkach w sprawie miejscowego planu zagospodarowania przestrzennego rejonu Rodzinnych Ogrodów Działkowych „MALWA” w Suwałkach
-
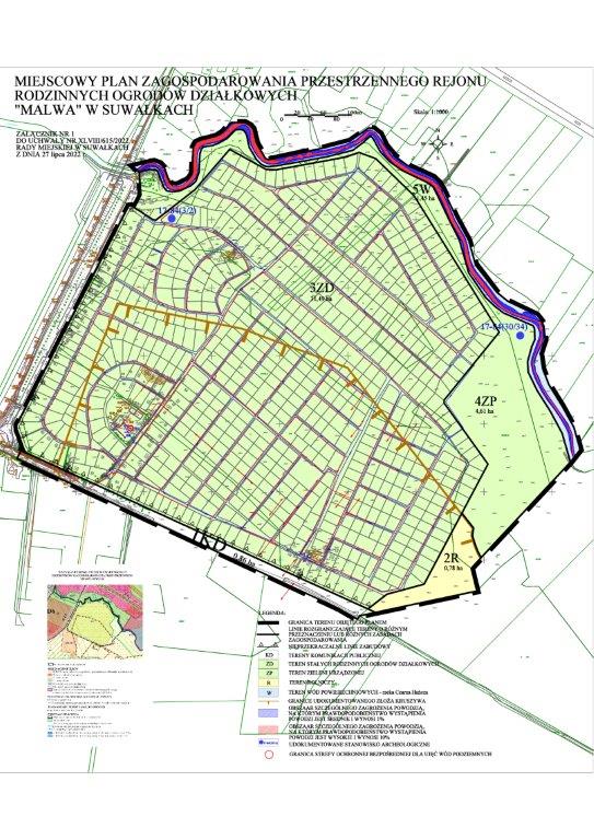
Rysunek planu
(
112.82 KB )
Załącznik graficzny do uchwały Nr XLVIII/615/2022 Rady Miejskiej w Suwałkach w sprawie miejscowego planu zagospodarowania przestrzennego rejonu Rodzinnych Ogrodów Działkowych „MALWA” w Suwałkach
-
Tekst planu
(
3.15 MB )
Treść uchwały Nr XLVIII/615/2022 Rady Miejskiej w Suwałkach w sprawie miejscowego planu zagospodarowania przestrzennego rejonu Rodzinnych Ogrodów Działkowych „MALWA” w Suwałkach
Podgląd
Udostępniający: Urząd Miejski w Suwałkach
Wytwarzający/odpowiadający: Małgorzata Włoskowska - Naczelnik Wydziału Architektury i Gospodarki Przestrzennej
Data wytworzenia: 2022-07-27
Wprowadzający: Justyna Wołągiewicz
Data modyfikacji: 2022-09-20
Opublikował: Justyna Wołągiewicz
Data publikacji: 2022-09-20
