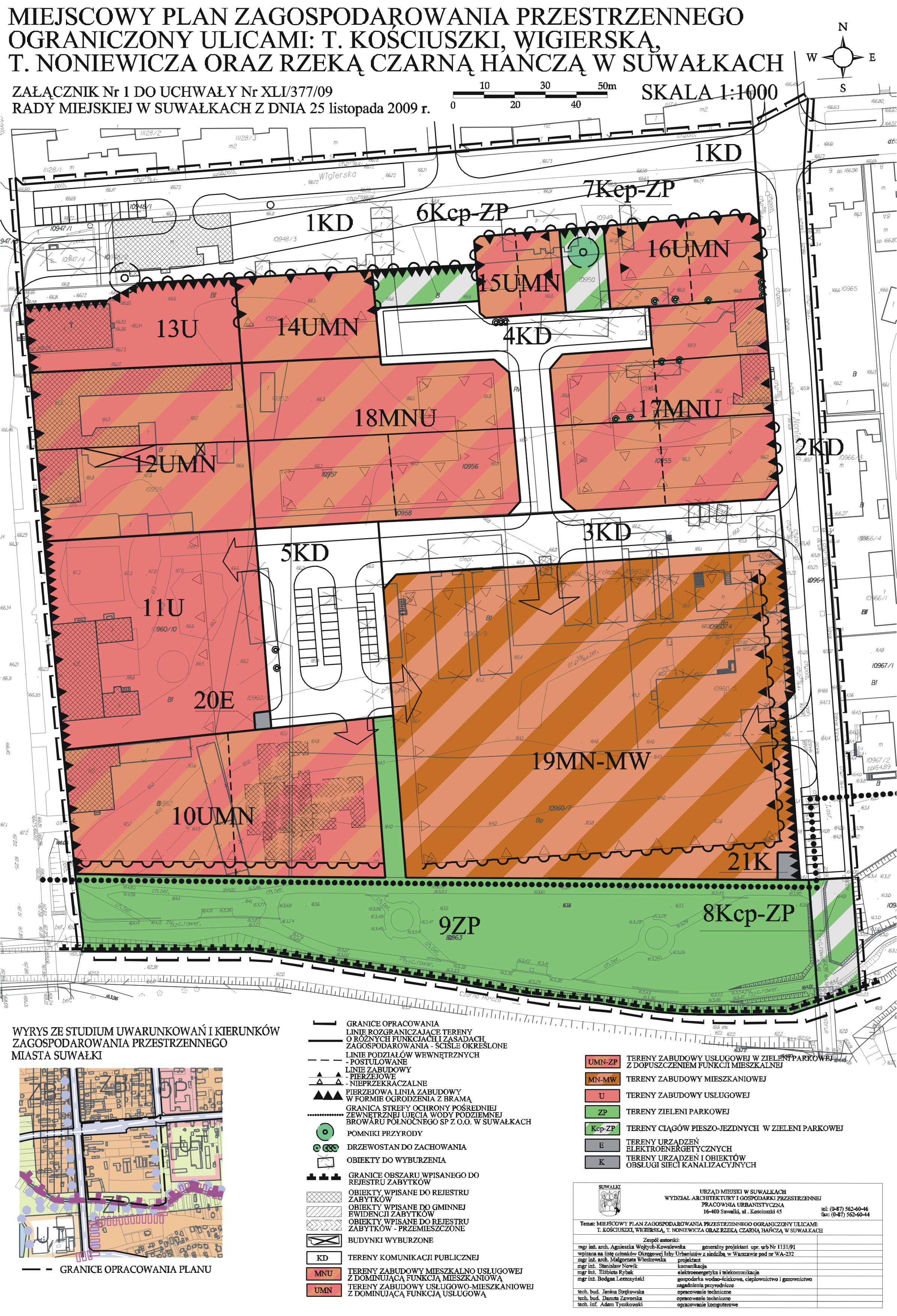
Plan nr 11.1 Wigierska, Kościuszki, rzeka Cz. Hańcza, Kościuszki
- Rysunek planu zał. mr 1 ( 2.02 MB )
- strona tyt. z nr Dz. Urz. ( 125.5 KB )
- tekst uchwały mpzp Wigierska ( 206.99 KB )
Podgląd
Udostępniający: Małgorzata Włoskowska - Wydział Architektury i Gospodarki Przestrzennej
Wytwarzający/odpowiadający: Danuta Zaworska-Jurkowska
Data wytworzenia: 2009-11-25
Wprowadzający: Danuta Zaworska-Jurkowska
Data wprowadzenia: 2009-12-30
Data modyfikacji: 2009-12-30
Opublikował: Danuta Zaworska-Jurkowska
Data publikacji: 2009-12-30
