Plan nr 39 - terenu między ulicą Wojska Polskiego, aresztem śledczym, torami kolejowymi i obszarem leśnym
- uchwala_tekst_planu.pdf ( 141.48 KB )
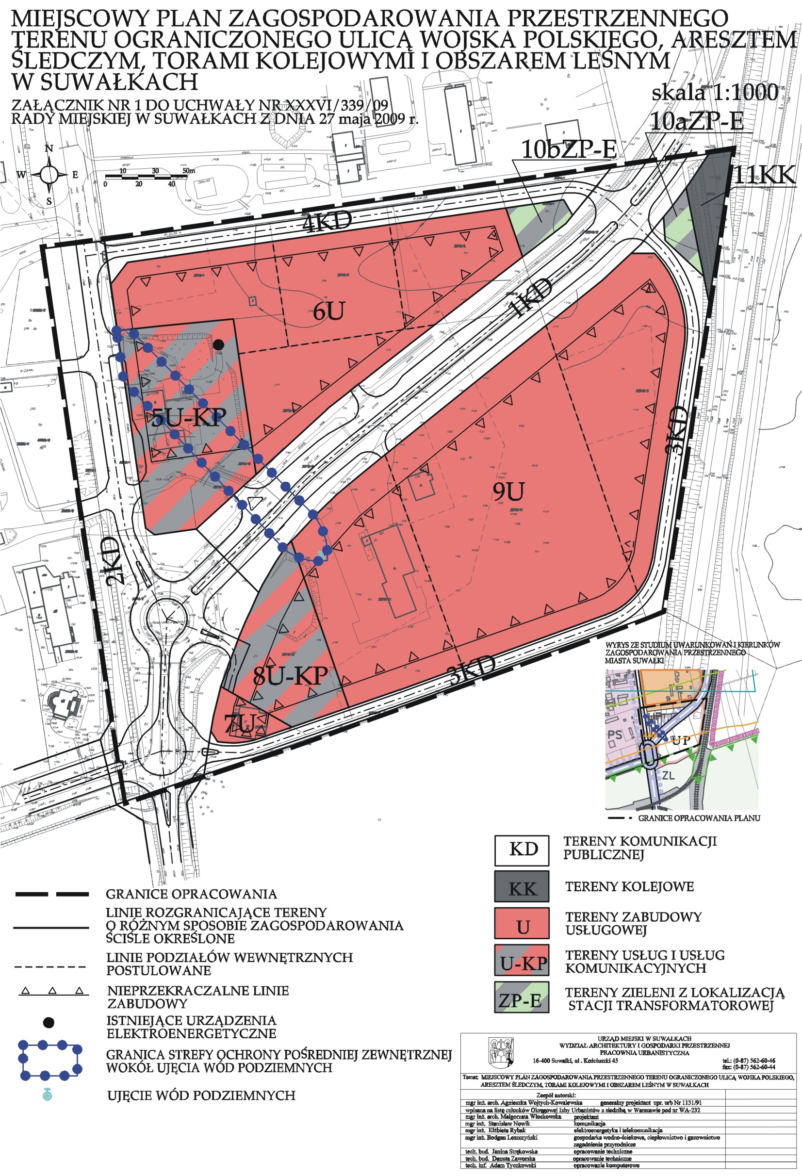
- zalacznik_nr_1_rysunek_planu.jpg ( 1.05 MB )
Podgląd
Udostępniający: Małgorzata Włoskowska - Wydział Architektury i Gospodarki Przestrzennej
Wytwarzający/odpowiadający: Małgorzata Włoskowska - Naczelnik Wydziału Architektury i Gospodarki Przestrzennej
Data wytworzenia: 2009-05-27
Wprowadzający: Dawid Kruszyłowicz
Data wprowadzenia: 2009-07-07
Data modyfikacji: 2025-11-17
Opublikował: Dawid Kruszyłowicz
Data publikacji: 2009-07-07
